Mesurage situation existante
- mesurage précis des espaces
- représentation en esquisses digitales de la situation existante
avantage : collecter des données spatiales et techniques afin de pouvoir travailler de la manière la plus efficace possible

avantage : collecter des données spatiales et techniques afin de pouvoir travailler de la manière la plus efficace possible
avantage : explorer le plus d'options possible afin de réaliser vos souhaits de façon optimale
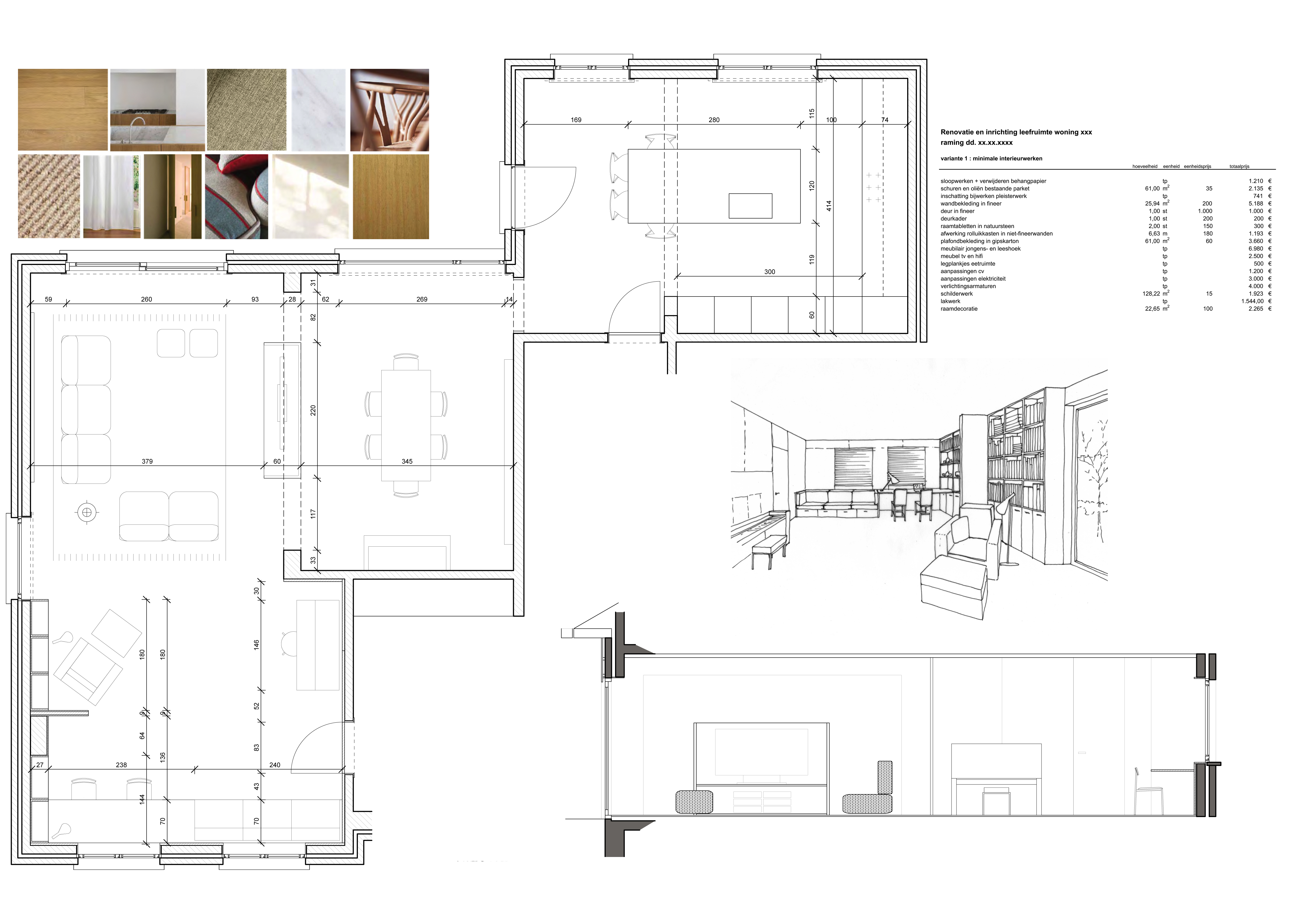
avantage : la documentation des plans 2D afin de vous permettre de vous faire une idée du résultat final et de l'ambiance voulue de la façon la plus concrète possible
avantage : la rédaction d'un dossier complet et correct fait en sorte que la procédure se passe plus souplement et donne la plus grande assurance possible d'obtenir un permis
avantage : le dossier est correctement signé et remis
avantage : le projet entier est exécuté jusque dans le moindre détail afin d'obtenir un ensemble technique et esthétique harmonieux
avantage : sérénité et avis basé sur l'expertise permettant de faire des choix de façon détendue, consciente et fondée.
avantage : un dossier clair pour les entrepreneurs, des faits établis et un minimum de surprises concernant les prix au chantier
avantage : ceci motive les entrepreneurs à établir un devis et fait en sorte que les différents prix sont faciles à comparer.
avantage : tijdswinst en gemoedsrust doordat wij u hierin bijstaan met raad en daad vanuit onze uitgebreide ervaring
avantage : plus de chance de recevoir des devis et des prix corrects dans un certain délai
avantage : contrôle des travaux par un architecte expérimenté